Энергокомплексы, дизельные генераторы и дизельные электростанции от производителя
Набережные Челны
Хлебный проезд, 32к2
Пн. - Пт. 9:00 - 18:00
8 (800) 250-75-89
8-800-250-75-89
+7 (913) 455-16-82
info@td.eag.su
Заказать звонок
Каталог изделий
Компания
  • О компании
  • Свидетельства
  • Партнеры
  • Отзывы
  • Карточка предприятия
Услуги
  • Проектирование
    • Проектирование дизель-генераторных установок (ДГУ)
    • Проектирование газопоршневых установок (ГПУ)
  • Сервисное обслуживание
    • Установка, ПНР и шефмонтаж дизель-генератора
    • Обучение
    • Гарантийное обслуживание
    • Техническое обслуживание
    • Диагностика и ремонт
    • Поставка запчастей, расходных материалов и комплектов ЗИП
  • Электроаудит и обследование объекта
  • Изготовление дизельных генераторов
  • Покупка ДГУ в лизинг
  • Доставка ДГУ в любой регион России
  • Сдача объекта заказчику
Документация
Аукцион
  • Библиотека ТЗ для торгов (аукцион, конкурс, котировка)
  • Самостоятельная подготовка ТЗ
Пресс-центр
  • Статьи
  • Электронные каталоги изделий и услуг
  • Новости
  • Видео
  • 3D - визуализация ДГУ
Проекты
  • Референс-лист
  • Горное дело
  • Нефть и газ
  • Сельское хозяйство
  • Социальная сфера
  • Строительная отрасль
  • Транспорт и связь
  • Энергетика
Контакты
    8 (800) 250-75-89
    8-800-250-75-89
    +7 (913) 455-16-82
    info@td.eag.su
    Пн. - Пт. 9:00 - 18:00
    Заказать звонок
    • Каталог изделий
      • Назад
      • Каталог изделий
      • Система мониторинга
      • Электростанции
        • Назад
        • Электростанции
        • Дизельные генераторы
          • Назад
          • Дизельные генераторы
          • Быстрый подбор по двигателю
            • Назад
            • Быстрый подбор по двигателю
            • Doosan
            • Cummins
            • Deutz
            • Mitsubishi
            • Scania
            • ЯМЗ
            • MTU
            • Perkins
            • пр-во КНР
            • Baudouin
            • Yuchai
            • Weichai
          • Быстрый подбор по мощности
            • Назад
            • Быстрый подбор по мощности
            • 20-100
            • 120-300
            • 315-600
            • 640-1000
            • 1100-5000
        • Газопоршневые установки
          • Назад
          • Газопоршневые установки
          • Быстрый подбор по двигателю
            • Назад
            • Быстрый подбор по двигателю
            • Cummins
            • Weichai
            • Yuchai
        • Опросный лист на изготовление генератора
        • Высоковольтные электростанции 6,3/10,5 кВ
        • Электростанции для дата-центров (ЦОДов)
        • Передвижные электростанции
      • Контейнеры / Кожухи
        • Назад
        • Контейнеры / Кожухи
        • Дизельные генераторы в контейнере
        • Дизельные генераторы в мини-контейнере
        • Дизельные генераторы в кожухе
        • Блочно-модульные здания для промышленного тяжеловесного оборудования (БМЗ)
      • Энергоцентры
        • Назад
        • Энергоцентры
        • Многоагрегатные энергокомплексы
        • Автоматизированный гибридный энергокомплекс (АГЭК)
      • Источники бесперебойного питания (ИБП)
    • Компания
      • Назад
      • Компания
      • О компании
      • Свидетельства
      • Партнеры
      • Отзывы
      • Карточка предприятия
    • Услуги
      • Назад
      • Услуги
      • Проектирование
        • Назад
        • Проектирование
        • Проектирование дизель-генераторных установок (ДГУ)
        • Проектирование газопоршневых установок (ГПУ)
      • Сервисное обслуживание
        • Назад
        • Сервисное обслуживание
        • Установка, ПНР и шефмонтаж дизель-генератора
        • Обучение
        • Гарантийное обслуживание
        • Техническое обслуживание
        • Диагностика и ремонт
        • Поставка запчастей, расходных материалов и комплектов ЗИП
      • Электроаудит и обследование объекта
      • Изготовление дизельных генераторов
      • Покупка ДГУ в лизинг
      • Доставка ДГУ в любой регион России
      • Сдача объекта заказчику
    • Документация
    • Аукцион
      • Назад
      • Аукцион
      • Библиотека ТЗ для торгов (аукцион, конкурс, котировка)
      • Самостоятельная подготовка ТЗ
    • Пресс-центр
      • Назад
      • Пресс-центр
      • Статьи
      • Электронные каталоги изделий и услуг
      • Новости
      • Видео
      • 3D - визуализация ДГУ
    • Проекты
      • Назад
      • Проекты
      • Референс-лист
      • Горное дело (12)
      • Нефть и газ (16)
      • Сельское хозяйство (10)
      • Социальная сфера (14)
      • Строительная отрасль (1)
      • Транспорт и связь (3)
      • Энергетика (4)
    • Контакты
    • Набережные Челны
      • Назад
      • Города
      • Абакан
      • Адлер
      • Альметьевск
      • Ангарск
      • Апатиты
      • Астрахань
      • Ачинск
      • Балашиха
      • Барнаул
      • Белгород
      • Брянск
      • Владивосток
      • Волгоград
      • Воронеж
      • Домодедово
      • Екатеринбург
      • Ижевск
      • Иркутск
      • Казань
      • Кемерово
      • Киров
      • Краснодар
      • Красноярск
      • Курск
      • Липецк
      • Махачкала
      • Москва
      • Мурманск
      • Мытищи
      • Набережные Челны
      • Нижневартовск
      • Нижний Новгород
      • Нижний Тагил
      • Новокузнецк
      • Новосибирск
      • Новый Уренгой
      • Одинцово
      • Омск
      • Орел
      • Оренбург
      • Пенза
      • Пермь
      • Петропавловск-Камчатский
      • Ростов-на-Дону
      • Рязань
      • Самара
      • Санкт-Петербург
      • Саратов
      • Смоленск
      • Сочи
      • Ставрополь
      • Сургут
      • Сызрань
      • Тамбов
      • Тольятти
      • Томск
      • Тула
      • Тюмень
      • Улан-Удэ
      • Ульяновск
      • Уфа
      • Хабаровск
      • Химки
      • Челябинск
      • Чита
      • Якутск
      • Ярославль
    • +7 (800) 250-75-89
    Хлебный проезд, 32к2
    info@td.eag.su
    • ТД Электроагрегат
    • Услуги
    • Проектирование
    • Проектирование дизель-генераторных установок (ДГУ) "под ключ" в Набережных Челнах

    Проектирование дизель-генераторных установок (ДГУ) "под ключ" в Набережных Челнах

    Проектирование СГЭ на базе дизель - генераторных установок
    Оформите заявку на услугу, мы свяжемся с вами в ближайшее время и ответим на все интересующие вопросы.
    Заказать услугу
    Содержание
    • Проектирование системы гарантированного электроснабжения на базе дизель - генераторных установок (электростанций)
      • Заказать/купить типовой проект дизельной электростанции
    • Дорожная карта создания проекта электростанции (энергокомплекса) на базе дизельных генерирующих установок и ИБП
      • Сбор исходных данных и анализ потребностей
      • Расчет стоимости проектирования на основании согласованного с заказчиком технического задания
      • Разработка принципиальной схемы и выбор основного оборудования
      • Разработка рабочей документации
      • Согласование проекта и передача в экспертизу
    • Документы, подтверждающие квалификацию сотрудников ООО "ТД Электроагрегат" на выполнение проектных работ, инженерных изысканий и архитектурно-строительного проектирования
    Проектирование ДГУ  представляет собой многоэтапный процесс создания системы для основного либо аварийного электропитания объекта. Главная задача такого проекта — гарантировать стабильное функционирование электроприборов в случае сбоя или отключения централизованной сети.

    Проектирование системы гарантированного электроснабжения на базе дизель - генераторных установок (электростанций)

    Проект по установке ДГУ необходим, чтобы превратить генерирующую установку в полноценный, безопасный и юридически легитимный энергоцентр.

    Без проекта возможны риски:
    • пожара, поражения электрическим током при неверном подключении кабельных линий, встречного включения ДГУ с сетевыми трансформаторами;
    • получения предписания от Ростехнадзора и штрафа за эксплуатацию энергоустановки без разрешительной документации (согласование проекта по подключению ДГУ в АО «РЭС»);
    • лишения гарантии на оборудование из-за неправильного подключения или получения убытков из-за невозможности запустить дизель-генераторную установку в момент реальной аварии.
    За годы работы специалисты нашей компании сформировали базу типовых проектов ДГУ стандартной комплектации различной мощности. Проекты выполнены для ДГУ, установленных в утепленном контейнере "Север" или всепогодном кожухе (под капотом). 
    После оплаты вы получите не черновик, а рабочий проект, который уже прошёл согласования и подходит для монтажа ДГУ "под ключ". Никакого индивидуального проектирования с его сроками и рисками: мы просто подбираем под ваше техническое задание готовый проект из нашей базы.

    * СТОИМОСТЬ типового проекта - 300 000 руб.
    * СРОК ИСПОЛНЕНИЯ - от 14 дней.

    Предлагаем вам воспользоваться нашим предложением. Это сэкономит вам деньги и время!

    Заказать/купить типовой проект дизельной электростанции

    Заполните заявку и мы свяжемся с вами в ближайшее время.
    Запросить услугу (расширенная)

    В соответствии с правилами устройства электроустановок (ПУЭ) в отношении надежности электроснабжения объекты разделяются на три категории:

    Категория объекта Необходимое кол-во источников питания Допустимый перерыв электроснабжения

    I категория: объекты, перерыв в электроснабжении которых может повлечь за собой опасность для жизни людей, угрозу для безопасности государства, значительный материальный ущерб, расстройство сложного технологического процесса, нарушение функционирования особо важных элементов коммунального хозяйства, объектов связи и телевидения.

    Два независимых взаимно резервирующих источника питания.
    Время, необходимое для автоматического восстановления питания от резервирующих источников.
    Объекты и потребители:
    • Промышленность, социальная сфера: насосы пожаротушения, аварийная вентиляция, системы противопожарной автоматики (АПС, СОУЭ), элеваторные узлы в котельных 
    • Горнодобывающая промышленность: подъемные машины стволов шахт, водоотливные установки, вентиляторы главного проветривания
    • Нефтегазовая отрасль: системы управления и защиты технологических процессов на непрерывных циклах (НПЗ, установки подготовки газа/нефти)
    • Сельское хозяйство: системы вентиляции и навозоудаления на птицефабриках и животноводческих комплексах
    Особая группа: объекты, бесперебойная работа которых необходима для безаварийного останова производства с целью предотвращения угрозы жизни людей, взрывов и пожаров. 
    Дополнительное питание от третьего независимого взаимно резервирующего источника питания.
    Перерыв недопустим.
    Объекты и потребители
    • Атомная энергетика: системы управления и защиты ядерного реактора (СУЗ), системы охлаждения активной зоны 
    • Нефтехимия и ВПК: системы автоматического противоаварийного управления, системы подавления взрыва, аварийная вентиляция во взрывоопасных зонах 
    • Крупные больницы и центры медицины катастроф, ЦОДы: серверное оборудование, обеспечивающее функционирование систем управления критической инфраструктурой ( авиадиспетчерские, банковские процессинги, системы госуправления)
    II категория: объекты, перерыв электроснабжения которых приводит к массовому недоотпуску продукции, массовым простоям рабочих, механизмов и промышленного транспорта, нарушению нормальной деятельности значительного количества городских и сельских жителей.
    Два независимых взаимно резервирующих источника питания.
    Время, необходимое для включения резервного питания действиями дежурного персонала или выездной оперативной бригады.
    Объекты и потребители:
    • Жилой фонд: дома высотой 5 этажей и выше (лифты, хозяйственные насосы, системы дымоудаления) 
    • Промышленность: большинство серийных производств (механосборочные цеха, текстильные фабрики, пищевая промышленность без непрерывного цикла), компрессорные станции некатегорийных производств
    • Коммунальное хозяйство: котельные (если они не являются единственным источником тепла для объектов 1-й категории), центральные тепловые пункты, насосные станции водопровода и канализации в городах 
    III категория: все остальные объекты, не подпадающие под определения
     I и II категорий.
    Один источник питания.
    Не более 1 суток.
    Объекты и потребители:
    • Индивидуальные жилые дома (до 5 этажей, не имеющие встроенных насосных или лифтов, требующих иной категории)
    • Вспомогательные цеха заводов (административно-бытовые корпуса, склады готовой продукции невзрывоопасные, столовые)
    • Мелкие торговые точки, гаражи, сараи, временные сооружения
    • Поливные насосные станции (сельское хозяйство при отсутствии требований к падежу скота)
    • Наружное освещение улиц и территорий (кроме аэродромов и объектов спецназначения)

    В соответствии с категорией объекта подготавливается рабочий проект по установке дизельной электростанции или многоагрегатного энергокомплекса.

    Дорожная карта создания проекта электростанции (энергокомплекса) на базе дизельных генерирующих установок и ИБП

    Началом работы с заказчиком является его запрос, направленный нам любым удобным для него способом: по электронной почте, заполнение формы на сайте, по телефону или заполнение опросного листа.

    Сбор исходных данных и анализ потребностей

    Этот этап является фундаментальным. Неверные исходные данные могут повлечь за собой проблемы в дальнейшем. Заказчику необходимо подготовить и передать следующую информацию:

    • Список всех нагрузок по 1 категории надежности (электроприемников): полный список всего, что будет являться потребителем электроэнергии с паспортными данными: мощность, ток, пусковые токи. Важно разделить оборудование на работающее в штатном режиме и в аварийном.
    • Требуемый режим работы дизель-генераторной установки: основной (постоянный) или резервный (только при пропадании сети). От этого зависит ресурс и тип исполнения генерирующей установки.
    • Планы помещений или топооснова участка, где планируется установка электростанции: генплан с нанесенными инженерными сетями, архитектурно-строительные чертежи или поэтажный план здания с экспликацией помещений (план БТИ).
    • Климатические условия: расчетная зимняя/летняя температура, снеговая и ветровая нагрузки, ветровой район, сейсмичность. Эти данные гарантируют безопасность объекта.
    • Данные по топливу: в случае, если требуется большое время автономной работы электростанции, дополнительно разрабатывается раздел рабочей документации на топливохранилище наземного или подземного размещения, резервуарные (вертикальные, горизонтальные РГС) или контейнерного типа (КХТ).  
    • Отдельно стоящая или встроенная насосная станция с необходимой автоматикой и устройствами защиты, с мониторингом всех инженерных систем на базе аппаратно-программного комплекса ЭТРО «Молния» и интеграцией со сторонними системами заказчика..
    С примерами технических заданий на проектирование ДЭС можно ознакомиться в разделе "Техническое задание на выполнение проектных, монтажных и пуско-наладочных работ систем гарантированного электроснабжения на базе дизельных генераторов (ДГУ, ДЭС)"

    На основании данных, которые получены от заказчика, наши специалисты выполнят необходимые расчеты и примут решения:
    • Расчет суммарной установленной и рабочей мощности. 
    • Предварительный расчет необходимой мощности ДГУ (с учетом одновременного запуска нагрузки и пусковых токов). Определение категории объекта по надежности. 
    • Принятие принципиального решения по комплектации электростанции: одна крупная ДГУ или несколько дизельных электростанций в составе энергоцентра, в котором электроустановки будут работать параллельно, а также необходимость использования ИБП или СНЭ.

    Расчет стоимости проектирования на основании согласованного с заказчиком технического задания

    Стоимость проекта дизельной генераторной установки - это производная от сложности объекта. От того, к какой категории относится ваш объект, зависит:
    1. Сколько источников питания нужно предусмотреть;
    2. Как долго допустим перерыв в электроснабжении;
    3. Какой сложности должна быть система автоматики;
    4. Нужно ли использовать ИБП (источники бесперебойного питания);
    5. И, как следствие - насколько сложным и дорогим будет проект дизельной электростанции и сколько времени потребуется на его подготовку.

    Изменение стоимости проектирования дизельной электростанции в зависимости от сложности

    Фактор

    Условие

    Коэфф. к базе (по трудозатратам)

    Базовый (типовой) вариант

    Контейнерная ДГУ, АВР размещен у стены здания, базовый пуск

    1.0

    Условия размещения

    Установка оборудования в подвал/здание с возможным демонтажем перегородок/перекрытий здания

    от 1.5 до 2.0

    Условия размещения

    Установка электростанции на крышу здания. Монтаж производится вертолетом

    от 1.8 до 2.5

    Надежность

    2 ДГУ с необходимостью синхронизации

    от 0.5 до 1.0

    Сети

    Кабельная трасса длиной более 100 м

    от 0.2 до 0.4

    Автоматизация

    Система мониторинга/SCADA

    от 0.3 до  0.6

    Примеры расчета коэффициента к базовой стоимости проектирования

    Пример1. ДГУ устанавливается в подвал существующего здания + необходима синхронизация 2 ДГУ + удаленная трасса 200 м. = 1.0 +1.5 +0.7 +0.3 = 3.5 - усредненный итоговый коэффициент сложности
    Т.е, подготовка проекта будет стоить в среднем в 3.5 раза дороже базового (типового), а сроки разработки будут увеличены в 3 - 4 раза.
    Пример2. Генерирующая установка размещается на крыше дома + сложная фасадная трасса + автоматизация = 1.0 +2.2 + 0.3 + 0.5 = 4,0
    Т.е, подготовка проекта будет стоить в среднем в 4 раза дороже базового (типового), а сроки разработки будут увеличены в  4-5  раз.

    Разработка принципиальной схемы и выбор основного оборудования

    На этом этапе специалисты ТД "Электроагрегат" разрабатывают технические решения согласно требований заказчика.
    • Согласовываем с заказчиком расчетную мощность генерирующей установки.
    • Учитываем пожелания заказчика по выбору производителя двигателя.
    • Рассчитываем токи короткого замыкания. Этот расчет обязателен для выбора коммутационных аппаратов (автоматов, рубильников).
    • Выбираем тип или группы генерирующих установок в составе энергоцентра: открытое исполнение для установки в помещении, исполнение в кожухе для размещения на открытом воздухе или в утепленном контейнере "Север" при размещении  на улице для регионов  с низкой температурой. Необходимость использования источников бесперебойного питания.

    • план проектируемого оборудования
    • Выбираем систему автоматического ввода резерва (АВР): АВР встроен в ДГУ, выносной щит АВР, выбор приоритета сети или ДГУ.
    • Выполняем подготовку однолинейной схемы, выбираем типы кабелей.
    • Принимаем решения по системе охлаждения: использование встроенного или выносного радиатора, или системы жидкостного охлаждения с "чиллерами" (актуально для больших мощностей или ЦОДов).
    • Проектируем топливную систему на основании выбора по использованию топливной емкости в раме, отдельно стоящего топливохранилища или подземного резервуара.

    Разработка рабочей документации

    Проект системы гарантированного питания (ДГУ, энергокомплексы) включает в себя:
    • Раздел 1 «Пояснительная записка»;
    • Раздел 2 «Архитектурно-строительная часть»;
    • Раздел 3 «Электроснабжение»;
    • Раздел 4 «Отопление и вентиляция ДГУ»;
    • Раздел 5 «Заземление»;
    • Раздел 6 «Дизель-генераторная установка»:
      1. подраздел «Обоснование выбора дизельного генератора»,
      2. подраздел «Технические данные электроагрегата»;
    • Раздел 7 «Мероприятия по охране труда, технике безопасности и производственной санитарии»;
    • Раздел 8 «Перечень мероприятий по охране окружающей среды»;
    • Раздел 9 «Мероприятия по обеспечению пожарной безопасности»;
    • Раздел 10 «Смета на строительство объектов капитального строительства»;
    • Раздел 11 «Иная документация»:
      1. чертеж с привязкой дизельной электростанции к местности,
      2. чертеж установки ДЭС на основании в 3 проекциях,
      3. чертеж расположения оборудования в контейнере (помещении),
      4. размещение контура заземления с описанием применяемых материалов,
      5. однолинейная схема электроснабжения,
      6. схема щита собственных нужд,
      7. кабельный журнал,
      8. спецификация оборудования и материалов,
      9. сводный сметный расчет стоимости строительства.
    Состав рабочей документации такой же, за исключением сметного расчета.

    Согласование проекта и передача в экспертизу

    На этом этапе мы выполняем:
    • Внутренний технадзор (проверка проекта)
    • Сопровождение проекта при прохождении государственной или негосударственной экспертизы с устранением возникших замечаний
    • Передачу заказчику готового пакета документации в бумажном и в электронном виде (формат *.dwg, *.pdf).
    Оплата (покупка) проекта для юридических лиц и ИП осуществляется по безналичному расчету на основании выставленного счета.
    После окончательного согласования с сотрудниками отдела продаж мы вышлем договор со всеми условиями и сроком передачи проекта дизельной генерирующей установки.

    Рабочая документация, выполненная АО «Торговый дом Электроагрегат», соответствует требованиям действующих технических регламентов, стандартов, сводов правил, других документов, содержащих установленные требования:

    1. ГОСТ 33105-2014-Установки электрогенераторные с двигателями внутреннего сгорания. Общие технические требования;
    2. ПУЭ Правила устройства электроустановок. Издание 7;
    3. СП 256.1325800.2016 - Электроустановки жилых и общественных зданий. правила проектирования и монтажа;
    4. СП 155.13130.2014 Свод правил склады нефти и нефтепродуктов требования пожарной безопасности;
    5. СП 12.13130.2009 Свод правил определение категорий помещений, зданий и наружных установок по взрывопожарной и пожарной опасности;
    6. СП 4.13130.2013. Системы противопожарной защиты. Ограничение распространения пожара на объектах защиты. Требования к объемно-планировочным и конструктивным решениям.

    Документы, подтверждающие квалификацию сотрудников ООО "ТД Электроагрегат" на выполнение проектных работ, инженерных изысканий и архитектурно-строительного проектирования

    Выписка из единого реестра сведений в области инженерных изысканий и архитектурно-строительного проектирования
    Выписка из единого реестра сведений в области инженерных изысканий и архитектурно-строительного проектирования
    Настоящая выписка содержит сведения о юридическом лице, осуществляющем подготовку проектной документации.
    ООО "ТД Электроагрегат" является членом саморегулируемой организации: 
    Союз "Гильдия проектировщиков Сибири"
    Имеет право на осуществление подготовки проектной документации в отношении объектов капитального строительства (кроме особо опасных, технически сложных и уникальных объектов, объектов использования атомной энергии).
    Выписка из единого реестра сведений в области инженерных изысканий и архитектурно-строительного проектирования №5401341984-20260513-1132 от 13.05.2026 года.
    Уведомление о включении в Национальный реестр специалистов в области строительства
    Уведомление о включении в Национальный реестр специалистов в области строительства
    Национальный реестр специалистов в области строительства, уникальный номер заявления № 0043003 от 19 июля 2017 года
    уведомляет, что Шваюк Елена Анатольевна
    включена в Национальный реестр специалистов в области строительства.
    Вид осуществляемых работ:
    Строительство, реконструкция, капитальный ремонт объектов капитального строительства.
    Идентификационный номер Специалиста: С-54-043003
    Свидетельство о квалификации Главного инженера проекта Шваюк Е.А.
    Свидетельство о квалификации 
    СПК в строительстве, Ассоциация "ЦОК строителей Сибири", регистрационный номер: 24.021 / 24.021.54.11
    Настоящее свидетельство удостоверяет, что Шваюк Елена Анатольевна:
    подтвердила квалификацию Главный инженер проекта (специалист по организации строительства) (7 уровень квалификации).
    Центр оценки квалификации: 
    Свидетельство о квалификации регистрационный номер 16.02500.09.00052955.28
    Выписка из реестра СРО в области строительства, реконструкции, капремонта, сноса ОКС
    Выписка из реестра СРО в области строительства, реконструкции, капремонта, сноса ОКС 
    Настоящая выписка содержит сведения о наличии у члена СРО права выполнения работ по строительству, реконструкции, капитальному ремонту, сносу объектов капитального строительства по договору строительного подряда, по договору подряда на осуществление сноса.
    ООО "ТД Электроагрегат" является членом саморегулируемой организации:
    Ассоциация «Новосибирские строители» СРО-С-076-23112009.
    Имеет право выполнения работ и обеспечении имущественной ответственности в отношении объектов капитального строительства (кроме особо опасных, технически сложных и уникальных объектов, объектов использования атомной энергии).  
    Выписка из реестра членов саморегулируемой организации в составе единого реестра сведений о членах саморегулируемых организаций в области строительства, реконструкции, капитального ремонта, сноса объектов капитального строительства и их обязательствах № СРО-5401341984-20260520-0951 от 20-05-2026.
    Посмотреть все сертификаты

    Часто задаваемые вопросы

    Вопрос 1: Обязательно ли нужен проект для установки дизель-генератора? Можно ли смонтировать ДГУ без проекта?
    Ответ:

    Да, наличие проекта является обязательным требованием для объектов, подпадающих под действие Градостроительного кодекса и Правил устройства электроустановок (ПУЭ). Без утвержденного проекта:

    • Вы не получите разрешение на ввод объекта в эксплуатацию.

    • Энергоснабжающая организация не согласует подключение.

    • В случае аварии или пожара вся ответственность ляжет на владельца.

    • Однако, в некоторых случаях (например, для замены старой ДГУ на новую в существующем здании без изменения мощностей и схемы), допускается выполнение «предпроектного обследования» с последующей разработкой рабочей документации в упрощенном порядке. Наши специалисты всегда предлагают оптимальный вариант, исходя из вашей ситуации.

    Вопрос 2: Что входит в «Рабочий проект ДГУ»? Что я получу на руки после завершения работ?
    Ответ:

    Мы сдаем проект «под ключ», полностью готовый к передаче в надзорные органы и к строительно-монтажным работам. Вы получите полный комплект документации в бумажном и электронном виде (форматы *.pdf и *.dwg), включающий:

    • Пояснительную записку с обоснованием всех решений.

    • Архитектурно-строительные решения: чертежи фундамента, контейнера/кожуха, расположения оборудования.

    • Электроснабжение: однолинейные схемы, кабельные журналы, расчет токов КЗ.

    • Системы жизнеобеспечения: вентиляцию, отопление, выхлоп, топливную систему.

    • Сметную документацию и мероприятия по охране труда и пожарной безопасности.

    Вопрос 3: Вы проектируете только ДГУ (дизель-генераторы) или занимаетесь сложными энергокомплексами?
    Ответ:

    Наша специализация — проектирование систем гарантированного электроснабжения любой сложности. Мы разрабатываем проекты не только для одиночных ДГУ, но и для:

    • Многоагрегатных энергокомплексов (параллельная работа 2-х и более установок).

    • Высоковольтных электростанций (6,3 / 10,5 кВ).

    • Гибридных энергоцентров с интеграцией дизельных/газовых генераторов, источников бесперебойного питания (ИБП) и систем накопления энергии (СНЭ).

    • Объектов в суровых климатических условиях (исполнение «Север», -60°C).

    Вопрос 4: Сколько времени занимает разработка проекта, и каковы сроки его согласования?
    Ответ:

    Сроки напрямую зависят от сложности объекта и полноты исходных данных, предоставленных заказчиком.

    • Разработка рабочей документации (для типового объекта мощностью до 500 кВт): в среднем от 10 до 20 рабочих дней.

    • Прохождение экспертизы (государственной или негосударственной): от 1 до 3 месяцев, в зависимости от загруженности экспертного органа и сложности объекта. Мы берем на себя полное сопровождение проекта в экспертизе, что позволяет минимизировать сроки и оперативно устранять замечания.

    Вопрос 5: Какие исходные данные нужны от меня, чтобы начать проектирование?
    Ответ:

    Чтобы стартовать и не терять время, нам потребуется:

    1. Техническое задание (ТЗ): желаемый режим работы (аварийный, резервный или основной), предполагаемая мощность, требования к автоматике.

    2. Исходные данные по объекту: план места установки (генплан), характеристики существующего ввода электроснабжения (напряжение, мощность, категория надежности по ПУЭ).

    3. Список нагрузок: перечень оборудования, которое необходимо запитать от ДГУ (с указанием мощностей и пусковых токов).

    4. Геологические и климатические данные (для расчета фундамента, вентиляции и выхлопа).

    Документы
    Объект - здание ГБУЗ НСО ГКБСМП №2 под размещение ангиографического комплекса
    3.4 Мб
    ЦОД, Рабочая документация
    8.1 Мб
    Объект - Центр обработки данных
    12 Мб
    Модернизация системы электроснабжения п. Талая по увеличению уровня установленной мощности до 5 МВт
    5.9 Мб

    Фотогалерея

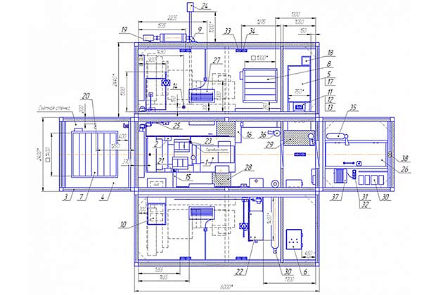
    • Разработка конструкторской документации
    • Работа конструкторского отдела
    • Работа по подготовке рабочего проекта СГЭ на базе дизельных генераторов
    • Фрагмент архитектурно-строительной части проекта: установка дизельного электроагрегата
    • Чертеж блок-контейнера с АД-1600-Т400-3РБК, длина контейнера - 12 метров, с выносным радиатором
    • Чертеж блок-контейнера с АД-1600-Т400-3РБК, длина контейнера - 12 метров, выделен топливный отсек.
    • Чертеж системы выпуска ОГ для ДГУ 10-250 кВт
    • Чертеж дизель-генератора ЭТРО

    Отзывы

    Отзыв контрагента о компании ООО «ТД Электроагрегат» и  исполненном проекте - поставке энергокомплекса для АО "Витимэнерго"
    АО "Витимэнерго"
    Директор
    Рейтинг: 5
    Следует отметить индивидуальный подход, слаженную работу с Заказчиком и профессионализм коллектива ООО «ТД Электроагрегат» при оперативном решении поставленных задач, связанных со сжатыми сроками, географической удаленностью объекта, а также с реализацией сложных логистических схем
    Подробнее
    Отзыв контрагентов о компании ООО «ТД Электроагрегат» и  исполненном проекте - поставке дизельных генераторов для ООО Старательская Артель "Золото Ыныкчана"
    ООО Старательская Артель "Золото Ыныкчана"
    Главный электромеханик
    Рейтинг: 5
    На объектах ООО Старательской Артели "Золото Ыныкчана" успешно работают дизельные электростанции производства завод "Электроагрегат" номинальной мощностью от 50 кВт до 250 кВт на двигателях Cummins в стационарном и передвижном исполнении.
    Подробнее
    Отзыв контрагентов о компании ООО «ТД Электроагрегат» и  исполненном проекте - поставке дизельных генераторов для ООО «Рудник Валунистый»
    ООО «Рудник Валунистый»
    Управляющий директор
    Рейтинг: 5
    Рекомендательное письмо
    Для золотодобывающей компании ООО «Рудник Валунистый», Чукотский автономный округ силами завода «ТД Электроагрегат» выполнены работы по проектированию, поставке, монтажу и наладке дизельного энергоцентра мощностью 5МВт напряжением 6.3кВ производства АО «Электроагрегат» (г.Новосибирск).
    Подробнее
    Отзыв контрагентов о компании ООО «ТД Электроагрегат» и  исполненном проекте - поставке дизельных генераторов для ОАО "Омскоблводопровод" Омская обл.
    ОАО "Омскоблводопровод" Омская обл.
    Главный инженер
    Рейтинг: 5
    Сроки поставки соблюдены. Качество сборки агрегата полностью удовлетворяет всем требованиям. Какие-либо нарекания отсутствуют. Двигатель работает хорошо и имеет большой запас мощности.
    Подробнее
    Все отзывы

    Поделиться
    Назад к списку
    • Система мониторинга
    • Электростанции
      • Дизельные генераторы
        • Быстрый подбор по двигателю
          Doosan Cummins Deutz Mitsubishi Scania ЯМЗ MTU Perkins пр-во КНР Baudouin Yuchai Weichai
        • Быстрый подбор по мощности
          20-100 120-300 315-600 640-1000 1100-5000
        • Показать все дизельные генераторы
      • Газопоршневые установки
        • Быстрый подбор по двигателю
          Weichai Cummins Yuchai
        • Показать все дизельные генераторы
      • Опросный лист на изготовление генератора
      • Высоковольтные электростанции 6,3/10,5 кВ
      • Электростанции для дата-центров (ЦОДов)
      • Передвижные электростанции
    • Контейнеры / Кожухи
      • Дизельные генераторы в контейнере
      • Дизельные генераторы в мини-контейнере
      • Дизельные генераторы в кожухе
      • Блочно-модульные здания для промышленного тяжеловесного оборудования (БМЗ)
    • Энергоцентры
      • Многоагрегатные энергокомплексы
      • Автоматизированный гибридный энергокомплекс (АГЭК)
    • Источники бесперебойного питания (ИБП)
    • Проектирование
      • Проектирование дизель-генераторных установок (ДГУ)
      • Проектирование газопоршневых установок (ГПУ)
    • Сервисное обслуживание
      • Установка, ПНР и шефмонтаж дизель-генератора
      • Обучение
      • Гарантийное обслуживание
      • Техническое обслуживание
      • Диагностика и ремонт
      • Поставка запчастей, расходных материалов и комплектов ЗИП
    • Электроаудит и обследование объекта
    • Изготовление дизельных генераторов
    • Покупка ДГУ в лизинг
    • Доставка ДГУ в любой регион России
    • Сдача объекта заказчику
    Наши специалисты ответят на любой интересующий вопрос по услуге
    Задать вопрос
    Компания
    О компании
    Свидетельства
    Партнеры
    Отзывы
    Карточка предприятия
    Услуги
    Проектирование
    Сервисное обслуживание
    Электроаудит и обследование объекта
    Изготовление дизельных генераторов
    Покупка ДГУ в лизинг
    Доставка ДГУ в любой регион России
    Сдача объекта заказчику
    Дополнительно
    Документация
    Аукцион
    Пресс-центр
    Проекты
    Каталог
    Система мониторинга
    Дизельные генераторы
    Высоковольтные генераторы
    Передвижные электростанции
    ДГУ в контейнере
    ДГУ в мини-контейнере
    ДГУ в кожухе
    БМЗ для промышленного оборудования
    Многоагрегатные энергокомплексы
    Гибридная электростанция
    Источники бесперебойного питания
    8-800-250-75-89
    Пн. - Пт. 9:00 - 18:00
    info@td.eag.su
    Набережные Челны
    Хлебный проезд, 32к2
    Дизельные генераторы и электростанции от новосибирского предприятия "Электроагрегат": 20 кВт, 24 кВт, 30 кВт, 32 кВт, 40 кВт, 50 кВт, 60 кВт, 64 кВт, 72 кВт, 80 кВт, 100 кВт, 120 кВт, 130 кВт, 150 кВт, 160 кВт, 180 кВт, 200 кВт, 220 кВт, 240 кВт, 250 кВт, 260 кВт, 280 кВт, 300 кВт, 315 кВт, 320 кВт, 350 кВт, 360 кВт, 400 кВт, 450 кВт, 480 кВт, 500 кВт, 520 кВт, 540 кВт, 560 кВт, 600 кВт, 640 кВт, 720 кВт, 800 кВт, 900 кВт, 1000 кВт/1 МВт, 1100 кВт/1,1 МВт, 1120 кВт/1,12 МВт, 1200 кВт/1,2 МВт, 1320 кВт/1,32 МВт, 1400 кВт/1,4 МВт, 1450 кВт/1,45 МВт, 1500 кВт/1,5 МВт, 1600 кВт/1,6 МВт , 1640 кВт/1,64 МВт, 1800 кВт/1,8 МВт, 2000 кВт/2 МВт, 2200 кВт/2,2 МВт, 2400 кВт/2,4 МВт, 2500 кВт/2,5 МВт, 3000 кВт/3 МВт, 3500 кВт/3,5 МВт, 4000 кВт/4 МВт, 4500 кВт/4,5 МВт, 5000 кВт/5 МВт, 6000 кВт/6 МВт, 6500 кВт/6,5 МВт, 7000 кВт/7 МВт, 8000 кВт/8 МВт, 9000 кВт/9 МВт, 10000 кВт/10 МВт,
    © 2001—2026, ООО «ТД Электроагрегат». Все права защищены
    Разработка сайта - ITConstruct
    Карта сайта - Политика конфиденциальности